15.01.20 Brit Rock Tour at The Newsroom Grab your front row seat for a stunning new line up of compelling stories from the vertical world.
17.12.19 Food for thought You might have noticed some tasty new treats in the Glasgow cafes this week. We are working with a couple of brilliant ethical organisations.
16.12.19 Keeping it local Meet BD Local Heroes Lucy and Roz as they talk about how they got into climbing and how they face the challenges it brings.
16.12.19 Lattice Board Work with coaches to get an insightful assessment of your climbing abilities and recommendations on areas to develop if you want to progress up the grades.
22.10.19 Hazel Findlay joins Urban Uprising at The Prop Store Top UK climber and Urban Uprising’s Ambassador Hazel Findley volunteers for her first session with the charity at The Prop Store.
18.10.19 What’s happening in Chippenham? Find out the latest about the newest addition to the TCA family
17.10.19 We have lift off! The expanded Mothership opens Join us for the first round of the Winter Bouldering Comp and climb across 2 levels of The Mothership for the very first time.
15.10.19 Meet our new Black Diamond Local Heroes Get to know some of the familiar faces around the TCA climbing scene
08.10.19 Reel Rock 14 – coming to TCA this month! Witness an evening of inspirational, adrenaline-fuelled climbing films with the 2019 Reel Rock Film Tour!
19.09.19 Shopping local for unique chalk bags Talking recycling, low carbon footprints and bespoke designs with Finch Climbing
16.09.19 Common Wheel – using climbing to improve lives Judith from Common Wheel explains how their charity is using climbing to help people with mental health issues to gain confidence and learn new skills.
26.08.19 Inclusive climbing – changing lives Tom Stabbins shares his thoughts on the power of climbing to change lives.
26.08.19 Top tips for safer roped climbing Find out the essential checks that will keep you safe at height.
26.08.19 Movement Medicine Anna Beata Yoga explores the ways in which climbers can benefit from yoga.
24.07.19 The ABCD of why bouldering makes you a better route climber… Alan Cassidy shares his essential training tips to help you send your roped climbing projects!
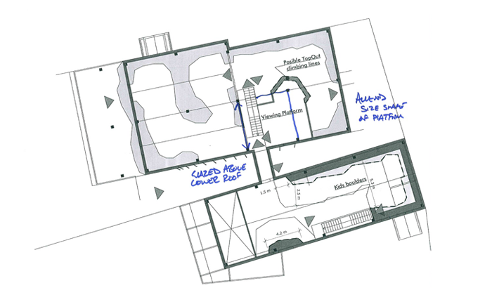
23.07.19 First look at designs for The Mothership Get a sneak preview of Walltopia's designs for the latest addition to TCA.
23.05.19 Pregnant not powerless – climbing through pregnancy In the era of ‘Pregnant not Powerless’, climbing while pregnant is not the controversial topic it once was. Ex-TCA staffer Rebekah Drummond talks us through her experiences of climbing through pregnancy.
23.05.19 Getting to know – Rich Emerson What ties together Genesis, crap diet books, big Alpine routes and TCA?
14.05.19 The Mothership – Now on MoveGB Here's everything you need to know about The Mothership x MoveGB
25.04.19 New Opening Hours at The Mothership From 13th May, The Mothership will have new opening hours
16.04.19 NIBAS and NICAS at TCA Glasgow Our Youth Sessions are part of NIBAS and NICAS from the Association of British Climbing Walls Training Trust.
11.04.19 The Mothership is Growing The secret's out - here's what we've got planned for The Mothership
11.04.19 Cobra Corner Takes on the New Auto-belay Wall This week in Cobra Corner, Stu jumps on our new auto-belay wall at the Prop Store.
22.03.19 Training and climbing technique tips from the master Do you want to improve your climbing technique or gain some useful training tips? Our local training guru Stu AKA Cobra tells you everything you need to know in our Cobra Corner series
29.01.19 The Prop Store is Now Open 7 Days a Week Have you visited The Prop Store yet? Here's when we're open...
03.01.19 New Climbing Wall in Chippenham Find out more about plans for a new Climbing Wall in Chippenham
22.11.18 Climb and Win a 6 Month Membership Vertical Life has launched at The Mothership so we're celebrating with a huge competition.